Active Under Contract MLS# 26007562

314 N Church Street, Waterloo, IL 62298

Subdivision: A J Koenigsmark Add

List Price: $250,000

4

Bedrooms

2

Baths

2,268

Area (sq.ft)

$110

Cost/sq.ft

1 Story

Type

19

Days on Market
Call Agent

Description

Located in the highly desirable Waterloo School District, this versatile property offers space, updates, and an unbeatable setting just minutes from the heart of downtown Waterloo. The main home features 3 bedrooms and 2 full baths with generous living areas designed for everyday comfort. Recent improvements give peace of mind, including a new roof in 2024, new sewer line in 2025, updated siding, gutters, and soffit in 2025, a Rheem A/C unit installed in 2022, and a new hot water heater in 2024. Additional updates include new windows, resurfaced tub, and beautifully renovated rear bedrooms. Connected by a breezeway, the separate studio space includes its own private bath and roughed-in kitchen area, and laundry offering endless flexibility for guests, multi-generational living, a home office, or potential rental income. Outside, you’ll find a large back patio, plus a 2-car garage complete with a workbench for hobbies or storage. Enjoy the convenience of being just blocks from local shops, restaurants, parks, and community events while still having the comfort of a spacious property to call home

Property Information

List Price $ 250,000
Original Price $ 250,000
Status Active Under Contract
MLS# 26007562
Bedrooms 4
Full baths 2
Half baths 0
Main Floor Full Baths 2
Sq. Ft. Above 2,268
Lot Size
Acres 0
Subdivision A J Koenigsmark Add
Municipality Waterloo
School District Waterloo DIST 5
County Monroe-IL
Property Type Residential
Style 1 Story
Style Description
Transaction Type
Special Conditions Standard
Type
Building Exterior Amenities
Building Style Ranch
Ownership
Special Description Standard
Appliances Some Electric Range,Washer

Additional Information

Elementary School WATERLOO DIST 5
Jr. High School WATERLOO DIST 5
Sr. High School Waterloo
Association Fee None
Architecture Ranch
Construction Vinyl Siding
Garage Spaces 2
Carport Spaces 0
Basement Description Exterior Entry,Unfinished
Fireplace Type
Fireplace Location
Lot Dimensions
Special Areas
Cooling Central Air
Sewer Public Sewer Sewer
Heating Forced Air
Water Public
Heat Source
Kitchen
Appliances Electric Range,Washer
Dining
Interior Decor
Property Tax $3,177

Map Location

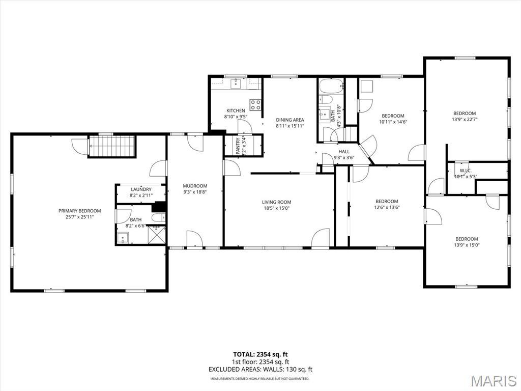
Rooms Dimensions

Room Dimensions (sq.rt)
Living Room (Level-Main) 18 x 15
Dining Room (Level-Main) 8 x 15
Kitchen (Level-Main) 8 x 9
Bathroom (Level-Main) 4 x 10
Bedroom (Level-Main) 12 x 13
Bedroom 2 (Level-Main) 10 x 14
Bedroom 3 (Level-Main) 13 x 15
Primary Bedroom (Level-Main) 13 x 22
Mud Room (Level-Main) 9 x 13
Bonus Room (Level-Main) 25 x 25
Bathroom (Level-Main) 8 x 6

Change History

Listing Courtesy of eXp Realty