Closed MLS# 25078937

23 Windsor Drive, Belleville, IL 62223

Subdivision: Commodore Heights 3rd Add

2

Bedrooms

1

Baths

1,198

Area (sq.ft)

$129

Cost/sq.ft

1 Story

Type

6

Days on Market
Call Agent

Description

Welcome to this well-maintained home offering a great blend of comfort, functionality, and usable outdoor space. Inside, you’ll find beautiful hardwood flooring, generous natural light from multiple windows, and a layout designed for everyday convenience. The kitchen includes essential appliances—refrigerator, stove, and dishwasher—providing a move-in-ready experience. The primary bedroom features a walk-in closet with built-in shelving, offering excellent storage and organization. Additional highlights include an attached 1-car garage, driveway, front and backyard, and an outdoor covered area ideal for grilling, gatherings, or relaxing outside. A backyard storage shed adds even more flexibility for tools, equipment, or seasonal items. This home offers practical features throughout and is suitable for a variety of needs, including those looking to downsize or buyers entering the market for the first time. Its combination of comfort, storage, and usable outdoor space makes it a strong option for anyone seeking a well-rounded, move-in-ready property. AGENT- OWNED.

Property Information

Original Price $ 155,000
Status Closed
MLS# 25078937
Bedrooms 2
Full baths 1
Half baths 0
Main Floor Full Baths 1
Sq. Ft. Above 1,198
Lot Size
Acres 0
Subdivision Commodore Heights 3rd Add
Municipality
School District Harmony Emge DIST 175
County St Clair-IL
Property Type Residential
Style 1 Story
Style Description
Transaction Type
Special Conditions Standard
Type
Building Exterior Amenities
Building Style Ranch,Traditional
Ownership
Special Description Standard
Appliances Some

Additional Information

Elementary School Harmony Emge DIST 175
Jr. High School HARMONY EMGE DIST 175
Sr. High School Belleville High School-West
Association Fee None
Architecture Ranch,Traditional
Construction Vinyl Siding
Garage Spaces 1
Carport Spaces 0
Basement Description
Fireplace Type
Fireplace Location
Lot Dimensions
Special Areas
Cooling Attic Fan,Ceiling Fan(s),Central Air
Sewer Public Sewer Sewer
Heating Forced Air,Natural Gas
Water Public
Heat Source
Kitchen
Appliances
Dining
Interior Decor
Property Tax $309

Map Location

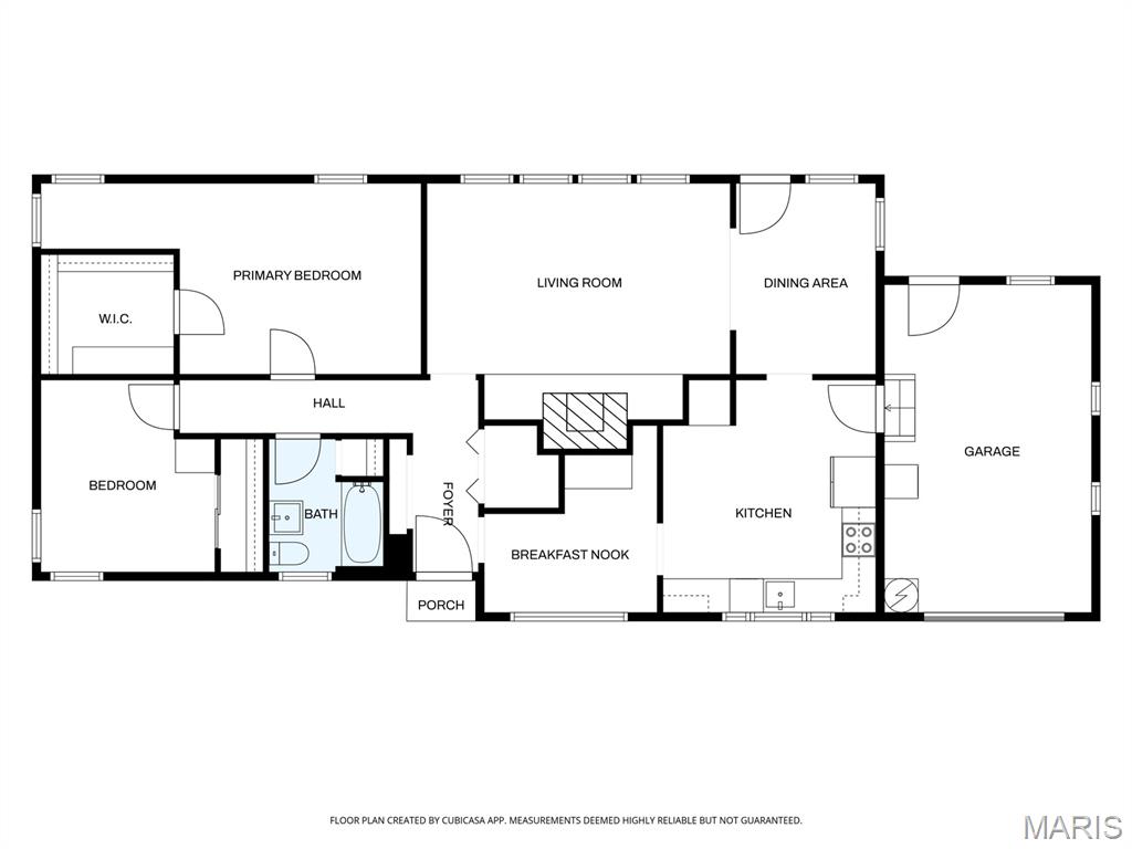
Rooms Dimensions

Room Dimensions (sq.rt)
Bathroom (Level-Main) 9 x 9
Bedroom (Level-Main) 21 x 12
Bedroom 2 (Level-Main) 12 x 12
Living Room (Level-Main) 18 x 15
Kitchen (Level-Main) 15 x 12
Dining Room (Level-Main) 9 x 9
Bonus Room (Level-Main) 12 x 9

Change History

Listing Courtesy of Century 21 Bailey & Company - [email protected]