Closed MLS# 25072438

1059 Lafayette Court, A, Collinsville, IL 62234

Subdivision: Carroll Wood Hill

2

Bedrooms

2

Baths

1,178

Area (sq.ft)

$68

Cost/sq.ft

2 Story

Type

40

Days on Market
Call Agent

Description

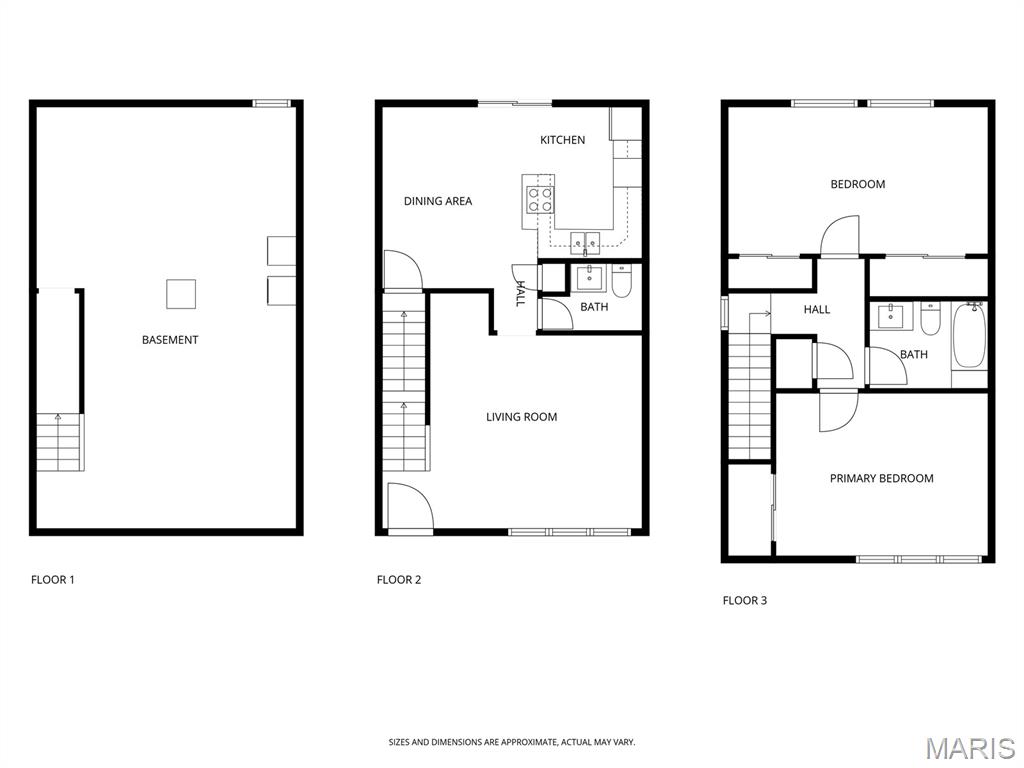
Nicely remodeled end-unit condo in a quiet, owner-occupied community (no leasing per HOA), where pride of ownership and well-kept grounds really show. Main level features a spacious living room, dining area with slider to the patio, and an efficient kitchen (refrigerator, cooktop & double wall ovens stay). Convenient half bath on the main. Upstairs you’ll find two large bedrooms with generous closets and a full bath between them. Updates include new flooring throughout, fresh paint, updated vanities, a new furnace, and a waterproofed full basement—great for storage or hobbies. Assigned covered parking (1 spot) included. The $320/mo HOA covers water, sewer, trash, lawn care, and exterior building maintenance for easy living. End-unit location near green space with quick access to shopping, dining, and interstates. Buyer to verify HOA rules.

Property Information

Original Price $ 79,900
Status Closed
MLS# 25072438
Bedrooms 2
Full baths 1
Half baths 1
Main Floor Full Baths 1
Sq. Ft. Above 1,178
Lot Size
Acres 7
Subdivision Carroll Wood Hill
Municipality
School District Collinsville DIST 10
County Madison-IL
Property Type Residential
Style 2 Story
Style Description
Transaction Type
Special Conditions Standard
Type
Building Exterior Amenities Association Management
Building Style Other
Ownership
Special Description Standard
Appliances Some Electric Cooktop,Built-In Electric Oven,Refrigerator,Washer/Dryer,Gas Water Heater

Additional Information

Elementary School COLLINSVILLE DIST 10
Jr. High School COLLINSVILLE DIST 10
Sr. High School Collinsville
Association Fee $320/Monthly
Architecture Other
Construction Brick
Garage Spaces 1
Carport Spaces 0
Basement Description Concrete,Storage Space,Sump Pump,Unfinished
Fireplace Type
Fireplace Location
Lot Dimensions
Special Areas
Cooling Central Air
Sewer Public Sewer Sewer
Heating Natural Gas
Water Public
Heat Source
Kitchen
Appliances Electric Cooktop,Built-In Electric Oven,Refrigerator,Washer/Dryer,Gas Water Heater
Dining
Interior Decor Ceiling Fan(s),Kitchen/Dining Room Combo,Pantry,Storage
Property Tax $937

Map Location

Rooms Dimensions

Room Dimensions (sq.rt)
Basement (Level-Basement) N/A
Bedroom (Level-Second) 18 x 10
Bathroom 2 (Level-Second) 15 x 11
Bathroom (Level-First) 8 x 4
Bathroom 2 (Level-Second) 8 x 6
Kitchen (Level-Main) 18 x 12
Living Room (Level-Main) 18 x 13
Dining Room (Level-Main) N/A

Change History

Listing Courtesy of Landmark Realty - [email protected]